越谷市レイクタウン2丁目中古戸建て
☆地元「越谷市」に強い
◆イオンハウジングの不動産仲介
◆店舗はイオンレイクタウンmoriの2階
◆住み替え・住宅ローン相談もお任せ
◆他の物件もまとめて内覧可能
◆社有車にて無料ご案内
◆オンライン相談も可能!
◆年中無休で水曜日も営業中!
◆感染症対策実施中!
-
- 越谷レイクタウンさくら保育園分園
約379m/5分
- 越谷市立 大相模小学校
約773m/10分
- maruetsu(マルエツ) 越谷レイクタウン店
約1328m/17分
- イオンレイクタウンmori
約871m/11分
ローンシミュレーションこの物件を購入した場合の、月々の支払い価格の一例です。借り入れを保証するものではございません。
- 返済期間
-
- 金利
-
- ボーナス時の増額(1回分)
-
- 借入金額:
-
- 頭金:
-

- 毎月の返済額:
(※元利均等方式 金利5.00%まで ※返済年数5~50年まで入力できます)
(※ボーナスは年2回で計算しています。1000万円まで入力できます)
(※物件購入時、その他諸費用が発生する場合がございます)
情報の見方担当者のコメント イオンハウジングイオンレイクタウン店

- こちらは中古の戸建てです。駐車スペースはご家族3人分まで駐車可能です。フローリングは掃除が簡単です。シューズボックス付きなので玄関に靴がかさばることもありません。ゆったり快適な生活空間を演出する広いリビングが特徴的。公園などの公共設備が整った、区画整理地内にあります。
ポイント・特徴
物件概要
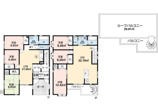
【中古一戸建】 物件番号:100330810 情報更新日:2026年01月19日 次回更新予定日:2026年02月02日所在地 埼玉県越谷市レイクタウン2丁目 交通 間取り/詳細 6LDK/
LDK 12.7帖 1室/和室 6.0帖 1室/洋室 5.0帖 1室/洋室 6.0帖 1室/LDK 19.7帖 1室/洋室 7.5帖 1室/洋室 5.0帖 2室
ルーフバルコニー29.81㎡建物面積(坪数) 156.22㎡(47.25坪) 価格 6,980万円 駐車場/月額料金 有(屋根有)/0円 土地の敷金/保証金 -/- 借地料/借地期間 -/- 土地権利 所有権 土地面積(坪数) 210.63㎡(63.71坪) 傾斜地部分面積 - 路地状敷地 - 私道負担面積/セットバック -/- 高圧線下面積 - 地目/地勢 宅地/平坦 接道状況 一方(南 公道 8.0m 間口 11.8m) 建ぺい率/容積率 60%/200% 用途地域 第二種住居 都市計画 市街化区域 種別/構造 中古一戸建/木造 階建 2階建 築年月(築年数) 2011年 7月 (築14年) 総区画数/販売区画数 -/- 向き 南 現況 居住中 その他の法令上の制限 高度地区/準防火地域 取引態様/引渡時期 仲介/相談 建築確認番号 - 物件番号 100330810 取引条件の有効期限 2026年02月02日 設備条件 - 陽当り良好
- 閑静な住宅地
- 二世帯住宅
- 室内洗濯機置場
- フローリング
- バルコニー
- ルーフバルコニー
- 公営水道
- 公共下水
- オール電化
- 電気有
- コンロ2口以上
- コンロ3口
- バス・トイレ別
- 温水洗浄便座
- 独立洗面台
- 床下収納
- 収納豊富
備考 ◆独立2世帯住宅
◆敷地面積60坪超
◆閑静な住宅街
◆カースペース3台分
◆南側前面道路8m
◆南向きバルコニー
◆29㎡のルーフバルコニー付き
◆JR武蔵野線「越谷レイクタウン」駅徒歩17分設備(その他) 太陽光設備・蓄電池有・オール電化 取扱会社 - イオンハウジング イオンレイクタウン店(運営会社:イオンモール株式会社)
- 埼玉県越谷市レイクタウン3丁目1-1 イオンレイクタウンmori 2階
- TEL:048-961-1560
- 国土交通大臣 (4) 第7682号
プライバシーマーク
環境ISO 14001 - (一社)全国住宅産業協会会員
(公社)首都圏不動産公正取引協議会加盟
※地図上に表示される物件の位置は付近住所に所在することを表すものであり、実際の物件所在地とは異なる場合がございます。
物件お問い合わせ
- 掲載物件数
-
件
- 公開物件数
-
件
- 本日の更新件数
-
件
- 会員物件数
-
件
同じエリアの中古一戸建
価格と住所の近い物件
- 越谷市瓦曽根6期 新築分譲住宅
- 6,298万円 4LDK/105.45㎡
- 埼玉県越谷市瓦曽根2丁目
- 武蔵野線「南越谷」駅 徒歩12分
- 越谷市蒲生西町5期 新築分譲住宅 全1棟
- 4,699万円 3LDK/103.92㎡
- 埼玉県越谷市蒲生西町2丁目
- 東武伊勢崎線「蒲生」駅 徒歩10分
- 越谷市宮本町4丁目 新築分譲住宅 全1棟
- 4,680万円 4LDK/102.68㎡
- 埼玉県越谷市宮本町4丁目
- 東武伊勢崎線「越谷」駅 徒歩19分
- 越谷市南町1期 新築戸建て 全2棟
- 4,580万円 4LDK/101.44㎡
- 埼玉県越谷市南町1丁目
- 東武伊勢崎線「新田」駅 徒歩20分
- 越谷市東越谷19期 全2棟
- 4,499万円 4LDK/99.78㎡
- 埼玉県越谷市東越谷5丁目
- 東武伊勢崎線「越谷」駅 徒歩24分




















