越谷市弥十郎 新築一戸建ての過去掲載物件情報現況の確認はお気軽にお問い合わせください。
| 所在地 | 埼玉県越谷市大字弥十郎 | ||
|---|---|---|---|
| 交通 | |||
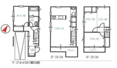
| 築年月(築年数) | 2023年 3月 ( 新築 ) | 種別/構造 | 新築一戸建/木造 |
| 設備条件 |
|
||
【外観】南西向き角地につき日当たり通風良好です
イオンハウジングイオンレイクタウン店 > (戸建(売買))地域から探す > 越谷市 > 越谷市弥十郎 新築一戸建て
| 所在地 | 埼玉県越谷市大字弥十郎 | ||
|---|---|---|---|
| 交通 | |||
| 築年月(築年数) | 2023年 3月 ( 新築 ) | 種別/構造 | 新築一戸建/木造 |
| 設備条件 |
|
||
【外観】南西向き角地につき日当たり通風良好です
件
件
件
件
