越谷市弥十郎 新築分譲住宅の過去掲載物件情報現況の確認はお気軽にお問い合わせください。
| 所在地 | 埼玉県越谷市大字弥十郎 | ||
|---|---|---|---|
| 交通 | |||
| 築年月(築年数) | 2024年 9月 ( 予定 ) | 種別/構造 | 新築一戸建/木造 |
| 設備条件 |
|
||
他の空物件
| 価格 | 間取り | 面積 | 詳細 | 検討リスト |
|---|---|---|---|---|
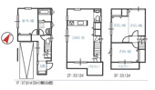
| 3,480万円 | 3LDK |
105.16㎡ | 詳細を見る | 追加する |
【外観】
イオンハウジングイオンレイクタウン店 > (戸建(売買))地域から探す > 越谷市 > 越谷市弥十郎 新築分譲住宅
| 所在地 | 埼玉県越谷市大字弥十郎 | ||
|---|---|---|---|
| 交通 | |||
| 築年月(築年数) | 2024年 9月 ( 予定 ) | 種別/構造 | 新築一戸建/木造 |
| 設備条件 |
|
||
| 価格 | 間取り | 面積 | 詳細 | 検討リスト |
|---|---|---|---|---|
| 3,480万円 | 3LDK |
105.16㎡ | 詳細を見る | 追加する |
【外観】
件
件
件
件
