越谷市花田10期 新築分譲住宅 全2棟
☆地元「越谷」に強い
◆イオンハウジングの不動産仲介
◆店舗はイオンレイクタウンmoriの2階
◆完成物件につき即内覧可能
◆住み替え・住宅ローン相談もお任せ
◆他の物件もまとめて内覧可能!
◆社有車にて無料ご案内
◆オンライン相談も可能
◆年中無休で水曜日も営業中!
◆感染症対策実施中
ローンシミュレーションこの物件を購入した場合の、月々の支払い価格の一例です。借り入れを保証するものではございません。
- 返済期間
-
- 金利
-
- ボーナス時の増額(1回分)
-
- 借入金額:
-
- 頭金:
-

- 毎月の返済額:
(※元利均等方式 金利5.00%まで ※返済年数5~50年まで入力できます)
(※ボーナスは年2回で計算しています。1000万円まで入力できます)
(※物件購入時、その他諸費用が発生する場合がございます)
担当者のコメント イオンハウジングイオンレイクタウン店

- 東武伊勢崎線北越谷駅周辺への引っ越しをお考えなら「越谷市花田10期 新築分譲住宅 全2棟」。新築ならではの「新しさ」がとても魅力です。生活を豊かにする様々な設備も充実した、新築の戸建て物件です。機能的で使いやすいシステムキッチン付きなので、お料理を楽しめます。越谷市で安心感のある暮らしを送れる一戸建てを、イオンハウジング イオンレイクタウン店(運営会社:イオンモール)がご提供致します。048-961-1560かah-laketownm@aeonmall.comからお気軽にご連絡下さい。
ポイント・特徴
物件概要
【新築一戸建】 物件番号:95054386 情報更新日:2025年11月10日 次回更新予定日:2025年11月24日| 所在地 | 埼玉県越谷市花田4丁目 | ||
|---|---|---|---|
| 交通 | |||
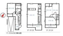
| 間取り/詳細 |
4LDK/ LDK 18.5帖 1室/洋室 8.0帖 1室/洋室 5.2帖 1室/洋室 5.0帖 1室/洋室 4.7帖 1室 4LDK+WIC+ファミリークローク |
建物面積(坪数) | 98.60㎡(29.82坪) |
| 価格 | 2,990万円 | ||
| 駐車場/月額料金 | 有(2台)/0円 | ||
| 土地の敷金/保証金 | -/- | 借地料/借地期間 | -/- |
| 土地権利 | 所有権 | 土地面積(坪数) | 118.46㎡(35.83坪) |
| 傾斜地部分面積 | - | 路地状敷地 | - |
| 私道負担面積/セットバック | -/- | 高圧線下面積 | - |
| 地目/地勢 | 宅地/- | 接道状況 | 一方(北東 公道 6.0m) |
| 建ぺい率/容積率 | 60%/100% | 用途地域 | 第一種中高層住居専用 |
| 都市計画 | 市街化区域 | 種別/構造 | 新築一戸建/木造 |
| 階建 | 2階建 | 築年月(築年数) | 2025年 5月 (新築) |
| 総区画数/販売区画数 | 2区画/- | 向き | 南東 |
| 現況 | 完成済み | その他の法令上の制限 | - |
| 取引態様/引渡時期 | 仲介/即時 | 建築確認番号 | 第24UDI1W建08486号 |
| 物件番号 | 95054386 | 取引条件の有効期限 | 2025年11月24日 |
| 設備条件 |
|
||
| 備考 |
◆1階には家族分の収納が可能、ファミリークロークあり ◆主寝室にはウォークインクローゼット ◆全居室に収納に便利なクローゼットあり ◆LDKは広々18.0帖 ◆リビングは折り上げ天井採用 ◆花田小学校は徒歩6分圏内 ◆家族の気配を感じられる対面式システムキッチン |
||
| 取扱会社 |
|
||
※地図上に表示される物件の位置は付近住所に所在することを表すものであり、実際の物件所在地とは異なる場合がございます。




















